固镇县丰原·国际城项目规划设计方案批前公示
固镇县丰原·国际城项目周边单位及住户:
依据《城乡规划法》等相关规定,我局对固镇县丰原·国际城项目进行规划批前公示,具体情况如下:
项目名称:固镇县丰原·国际城
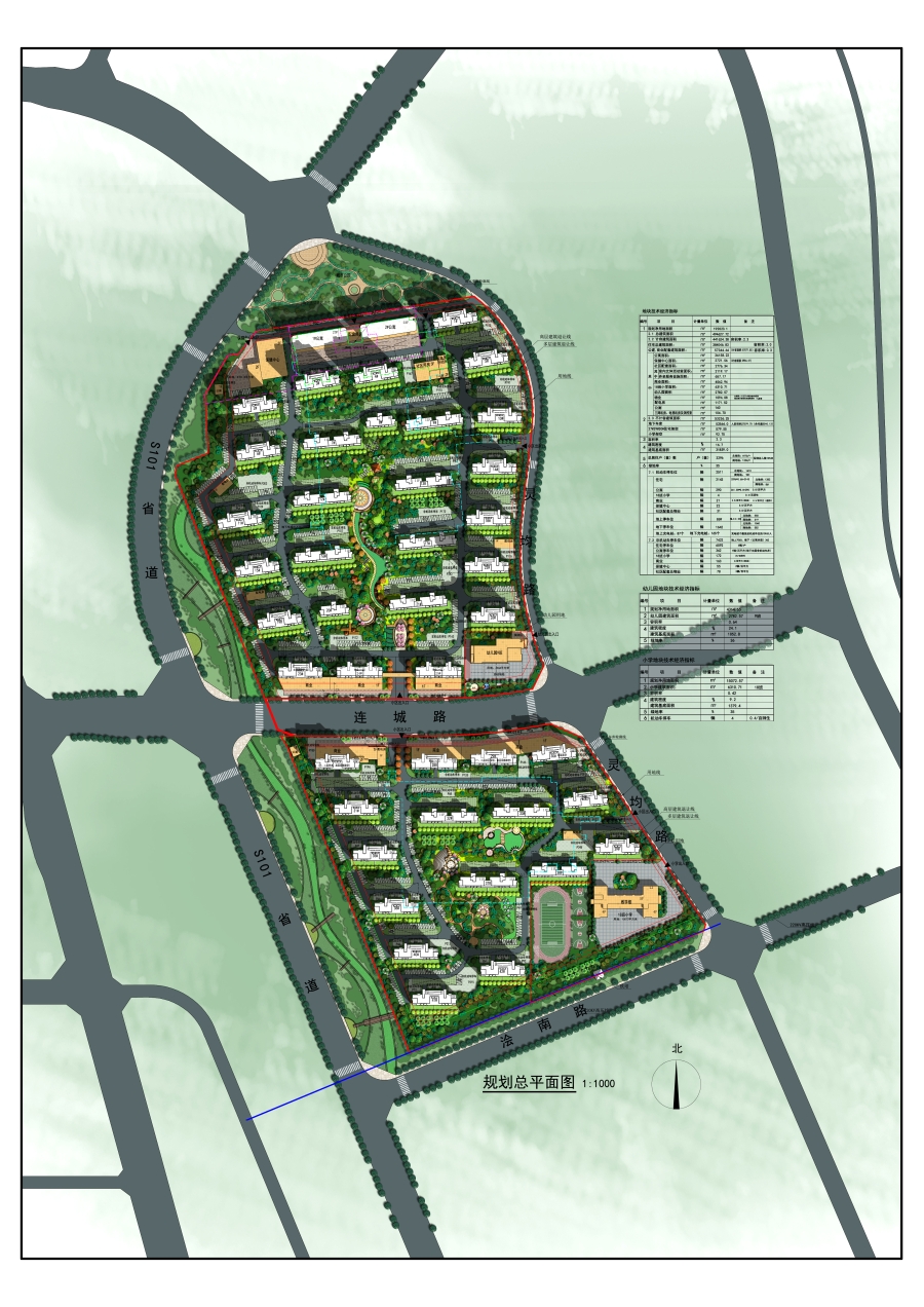
建设地址:固镇县老S101省道东侧
建设单位:安徽宝顺置业有限公司
建设规模:项目的总体布局、建筑外形及主要经济指标见图。
公示时间:2023年3月16日
联系电话:0552-6076156
本规划方案即将进入审批阶段,现面向社会公示,凡对本规划方案有异议,或认为该项目的建设对任何单位或个人会造成利益损害的,请自公示之日起7日内向我局提出书面意见,我局将在公示期满后,综合分析有关单位和住户意见,并按照有关技术规范和规定给予办理规划许可手续。
附件:
总平面图、鸟瞰图.zip


网站首页
固镇动态
政府信息公开
政民互动
网上办事
走进固镇
数据发布
皖公网安备34032302000001号
违法和不良信息举报中心





